Porto Blù Development
Kardiotissa island, Greece
Porto Blù is a private development project located on the 1.300.000 sq.m uninhabited island of Kardiotissa, in the south Aegean part of the Cyclades islands in Greece.
The development project aims to turn Kardiotissa into an idyllic retreat offering a unique lifestyle experience centered around well-being, relaxation and marine based activities.
The master plan scheme aims at developing 4 precincts:
- State-of-the art marina
- Villas (45)
- 5 stars hotel
- Beach club
Client: Confidential
Status: In progress
Villa type 1
Villa type 1
Villa type 2
Villa type 2
The hotel
The hotel
The beach-club
The mass plan
The marina
The marina
Hotel plan
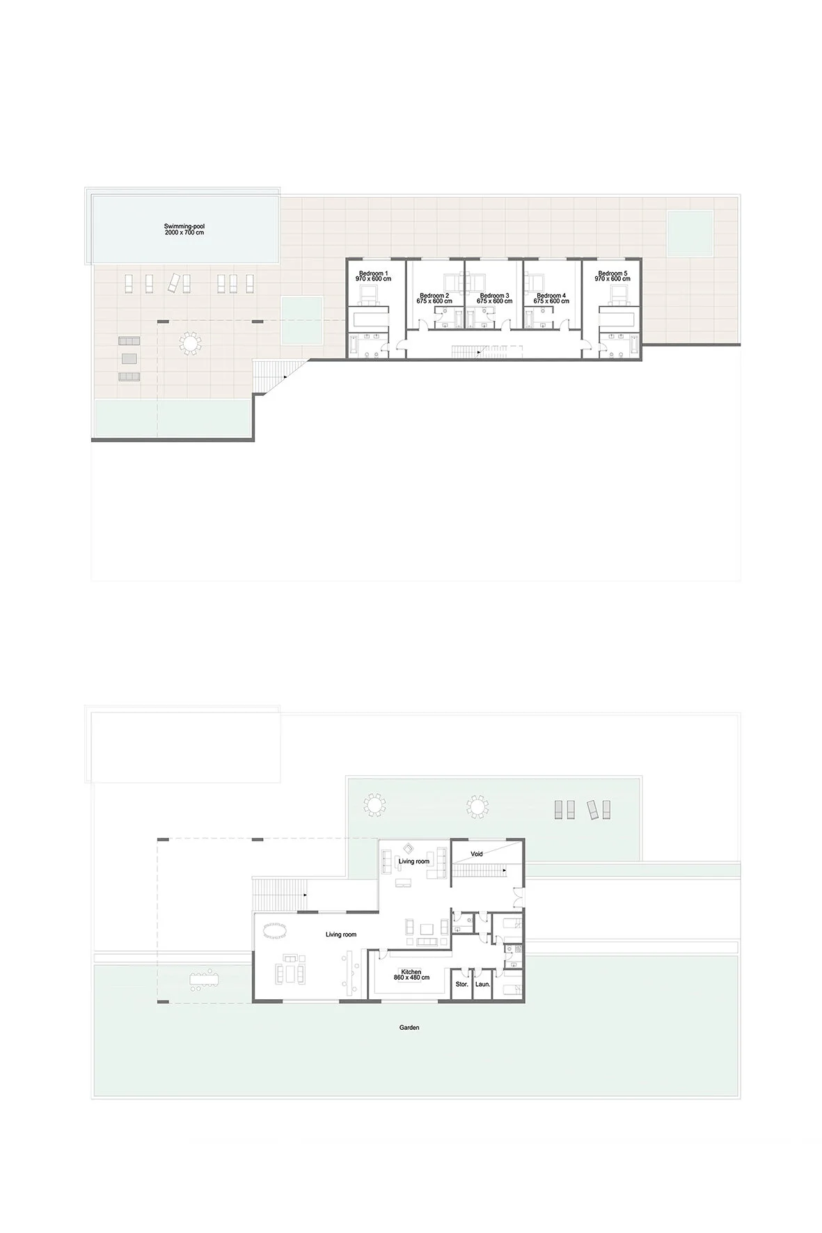
Villa type 1 plans
villa type 2 plans